北佐久郡軽井沢町長倉 デザイナーズ住宅 / 4LDK 39,800万円 専有260.4m2 築21年 不動産情報|【ララハウス高崎支店】高崎市の不動産・新築一戸建て・中古・マンションを探すならララハウスへ

【高崎駅 徒歩5分】高崎市の新築一戸建て、中古住宅、マンション、土地の不動産情報を毎日更新♪不動産売却・不動産買取もララハウスへお任せ

楽しく未来をつくる「ララハウス」グローバルな発想から¨不動産と建築をつなぐカンパニー¨

  • 人気
  • 希少

登録・更新日:2025/08/05

 

北佐久郡軽井沢町長倉 デザイナーズ住宅 

【観光地と避暑地が共存する自然豊かな中軽井沢】人気の星野エリアに近く、自然美と調和する至福のVilla。高級感溢れる室内はもちろん、1つ1つの素材までこだわり抜いた最高級の空間に。
価格 3億9800万円 間取り 4LDK  南向き 土地面積 1,538.54m 2  ( 465.4坪 ) 建物面積 260.4m 2  ( 78.77坪 )
主要アクセス しなの鉄道 中軽井沢駅  から 徒歩13分 完成年月 2004年07月
  • 複数駐車場有り
  • 追い焚き
  • フローリング
  • システムキッチン・IH
  • リフォーム済み

[メールで簡単] この物件を問い合わせる

外観図

人気の星野エリアに近く、自然美と調和する至福のVilla。

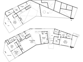
間取り図面

〈2階建て母屋〉軽井沢のリゾート感溢れるライフスタイルを満喫できる理想の物件です。

電話番号
027-310-2020
受付時間
9:00~19:00 定休:水曜日(祝日は除く)
問い合せ番号
4_7560

[メールで簡単] この物件を問い合わせる

  • 人気の星野エリアに近く、自然美と調和する至福のVilla。
  • 〈母屋〉ゆったりとした空間で家族やゲストと寛げます。
  • 〈母屋〉リビングの隣接エリアにはキッチンがあり、動線も良く使いやすい設計。
  • 木のぬくもり溢れる内装が、自然と調和した軽井沢らしい上質な住まいを演出しています。
  • ウッドデッキへ直接出られるゲストルーム。畳の香りと木のぬくもりに包まれた和室。四季の景色を楽しめる癒しの空間。
  • 〈ガレージ〉愛車を守るガレージ。雨の日も濡れずに出入りでき、荷物の積み下ろしも快適です。
  • 〈母屋〉大きな窓から自然を望む開放的な浴室。四季の景色を眺めながら、ゆったりと湯に浸かれる贅沢な時間を演出します。
  • 洗面台とタンクレストイレを一体化した機能的なパウダールーム。すっきりとしたデザインで、ゲストにも使いやすく、快適と美しさを両立した空間です。
  • 窓からの景色を眺めながら調理が楽しめる10.4帖のキッチン。広々とした作業スペース付き。
  • ゆとりある空間と大きな窓からの自然光が、訪れる人をやさしく迎える上質なエントランス。
  • 広さとプライバシーを確保した17.2帖のゲストルーム。長期滞在でも快適に過ごせる贅沢な空間。
  • 《離れ》母屋から程よく距離を置いた静謐な空間。読書や創作、在宅ワークなど、自分時間を大切にできる離れです。
  • 〈離れ〉キッチン付きで幅広く使える独立スペース。ゲストの滞在から趣味のアトリエまで、多彩なシーンに対応します。
  • 〈離れ〉緑に囲まれた離れは、まるで小さな別荘。静けさの中で心をリセットし、日常を忘れる特別な時間を過ごせます
  • グルメやアクティビティなど多彩な楽しみ方ができる人気のエリア。
  • 東京から軽井沢までは新幹線で最短約1時間とアクセスがしやすい立地。
  • 日帰りで気分転換をしたり、宿泊して休暇を満喫したりと、自由な過ごし方で旅行を楽しめる点が軽井沢星野エリアの魅力です。
  • 木漏れ日や涼やかな風を感じられる屋外空間。バーベキューや読書、星空観賞に。
  • 〈母屋〉開放的な43.7帖の大空間リビング。大きな窓から差し込む自然光と、森の景色が日常を特別な時間に変えます。
  • 〈離れ〉LDK23.1帖の空間
  • 1台駐車可能なガレージ。その他2台、計3台の駐車スペース有◎

担当者からコメント

〈 POINT 〉

◇四季折々を感じることのできる空間でプライベート空間を最高級演出
 木々と調和するお庭&ウッドデッキが開放的な空間に。

◇「軽井沢」駅より車で8分
 都心から新幹線や車でアクセス良好

◇駐車スペースはガレージ1台、敷地内2台の計3台
 ガレージもありますので大切なお車を大切に保管できます◎

◇LDKは54.1帖
 吹抜け天井の広々としたリビングは至福の空間に

◇バスルームは2か所にご用意
 お客様と分けることも可能に◎

■【0120-77-1115】へお気軽にお問い合わせください■
■【ララハウス 高崎】で検索♪
  最新情報を毎日更新中です!
  弊社ホームページをご利用くださいませ
電話番号
027-310-2020
受付時間
9:00~19:00 定休:水曜日(祝日は除く)
問い合せ番号
4_7560

[メールで簡単] この物件を問い合わせる

物件詳細情報

基本

アクセス しなの鉄道 中軽井沢駅  から 徒歩13分 種別 一戸建て
所在地 長野県北佐久郡軽井沢町長倉 学校区 -

費用

価格 3億9800万円 公庫・融資
借地期間 -年 地代 -円
駐車場 - バイク置場 -
駐輪場 -

土地

土地権利 所有権 土地持分 -
土地面積 (公簿) 1,538.54m 2  ( 465.4坪 ) 土地面積 (実測) -
私道負担面積 - 私道負担割合 -
セットバック - 接道 南西 公道6m
建蔽率 20% 容積率 20%
地目 宅地 地勢 -
都市計画 非線引区域 用途地域 第一種低層住居
防火 - 高度地区 -
国土法届出 - その他法令上の制限 軽井沢町都市景観区域・日影規制ほか

建物

構造 鉄筋コンクリート造 完成年月 2004年07月 ( 築21年 )
建築面積 - 敷地面積 -
建物面積 260.4m 2  ( 78.77坪 ) 階建 2階建
間取り 4LDK  南向き バルコニー面積 -
リフォーム 2025年07月実施、 壁・天井一部再塗装・補修/床一部張替・補修/襖・障子・畳交換/水廻り交換(キッチン・食洗器・トイレ・洗面化粧台)/風呂ふた・シャワーヘッド交換/浴室水栓・照明交換/浴室テレビ・ハンドル交換/給湯器交換/スイッチ・コンセントカバー交換/エアコン交換/全室照明機器交換/換気扇・吸気口交換/建具・サッシ補修・調整/玄関土間タイル再研磨・補修/玄関ドア木製パネル交換/TVモニター付インターホン交換/水廻りコーティング/コーキング/ハウスクリーニング/ポーチ照明交換/ウッドデッキ再塗装/※平屋建て建物(離れ)はハウスクリーニングのみとなります※ リノベーション -
施工会社名 - 建築確認番号 -
設備・条件 上水道/下水道/南向き/閑静な住宅街/デザイナーズ/システムキッチン/ガスコンロ/食器乾燥機/バス・トイレ別/追い焚き/トイレ2ケ所/バス1坪以上/洗面化粧台独立/シャンプードレッサー/洗面所/温水洗浄便座/浴室乾燥機/エアコン/24時間換気システム/床下収納/ウォークインクローゼット/収納スペース/TVドアホン付き/複層ガラス・防犯ガラス/駐車場有り/2台目駐車場/3台目駐車場/駐車場屋根有り/庭/フローリング/照明器具・家電付き/リフォーム済/リゾート物件/電気/売主物件/2面採光/独立型キッチン/オートバス/TV付浴室/シューズボックス/リビング18帖以上/水廻り集中設計/前面道路6m以上/現地写真あり/複層ガラス
◇駐車スペース
ガレージ1台/敷地内2台

◇建物面積
2階建て母屋:260.40㎡/ガレージ:25.08㎡/平屋建て離れ:43.06㎡

◇建物構造
鉄筋コンクリート造亜鉛メッキ鋼板葺2階建/鉄筋コンクリート造陸屋根平屋建(ガレージ)/鉄骨造合金メッキ鋼板ぶき平屋建

◇築年月
母屋・ガレージ:2004年7月/平屋離れ:2008年5月

◇間取り
4LDK+WIC+ストレージルーム+浴室2箇所+洗面室2箇所+ランドリールーム(2階建て母屋)/LDK(平屋建て離れ)

◇学区
小学校:軽井沢町立軽井沢中部小学校(徒歩17分)/中学校:軽井沢町立軽井沢中学校(徒歩24分)

◇備考
・図面と現況が異なる場合は現況を優先します※

その他

現況 ・ 入居 空家  ・  相談 取引態様 売主
次回更新日 2025/11/05 QRコード

QRコードから物件情報を見ることが出来ます。読み取りにくい方はこちらからQRコードを拡大できます。

担当者 千本 美穂子

北佐久郡軽井沢町長倉 デザイナーズ住宅への お問い合わせはララハウス株式会社 高崎支店まで

ララハウス株式会社 高崎支店
3700052群馬県高崎市旭町21-1

会社案内

印刷する

お電話・FAXでのお問い合せ
TEL:027-310-2020 FAX:027-310-2021
受付時間
9:00~19:00 定休:水曜日(祝日は除く)

物件の空き状況や、内見希望などお気軽にお問い合わせください

[メールで簡単] この物件を問い合わせる

こちらの物件もあります。

  • 群馬県高崎市箕郷町下芝

    2180万円

    4LDK / 104.49m²

    井野駅から徒歩 86分

    候補

  • 群馬県高崎市箕郷町上芝

    2680万円

    3LDK / 103.5m²

    駅から徒歩-分

    候補

  • 群馬県高崎市柴崎町

    1649万円

    倉賀野駅から徒歩 34分

    候補

  • 群馬県前橋市大前田町

    750万円

    4LDK / 81.14m²

    北原駅から徒歩 16分

    候補

  • 群馬県高崎市石原町

    1000万円

    3LDK / 86.53m²

    南高崎駅から徒歩 31分

    候補

  • 群馬県高崎市乗附町

    3980万円

    3LDK / 109.44m²

    南高崎駅から徒歩 56分

    候補

  • 群馬県高崎市江木町

    4480万円

    4LDK / 98.53m²

    高崎問屋町駅から徒歩 21分

    候補

  • 群馬県前橋市鼻毛石町

    1499万円

    5LDK / 122.55m²

    樋越駅から徒歩 34分

    候補

  • 群馬県前橋市箱田町

    2890万円

    4LDK / 110.13m²

    新前橋駅から徒歩 17分

    候補

  • 群馬県高崎市下里見町

    2680万円

    5SLDK / 125.86m²

    安中駅から徒歩 57分

    候補

  • 群馬県前橋市上佐鳥町

    2980万円

    4SLDK / 140.35m²

    前橋駅から徒歩 49分

    候補

  • 群馬県前橋市紅雲町

    2480万円

    4LDK / 93.57m²

    前橋駅から徒歩 14分

    候補

  • 群馬県前橋市文京町

    4280万円

    6LDK / 195.01m²

    前橋駅から徒歩 23分

    候補

  • 群馬県前橋市田口町

    1099万円

    4LDK / 116.34m²

    八木原駅から徒歩 52分

    候補

  • 群馬県前橋市大利根町

    2780万円

    4LDK / 99.98m²

    新前橋駅から徒歩 42分

    候補

最近見た物件 (1)