北佐久郡軽井沢町長倉 デザイナーズ住宅 長野県北佐久郡軽井沢町大字長倉 |38,880万円の中古一戸建て|ララハウス高崎支店
| 価格 | 38,880万円値下がり ![]() |
||||
|---|---|---|---|---|---|
| 所在地 | 長野県北佐久郡軽井沢町大字長倉
この地域周辺の物件を見る |
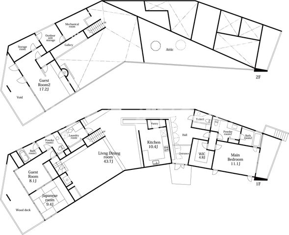
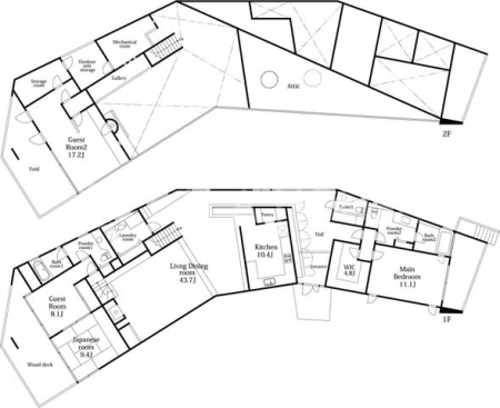
土地面積 | 1538.54m² (465.4坪) | 建物面積 | 260.4m2 |
| 築年月 | 2004年7月築 | 間取り | 4LDK (LDK54.1/洋室11.1/洋室8.1/和室9.4/S4.8/洋室17.2) | ||
| 交通 |
しなの鉄道 中軽井沢 徒歩20分
|
||||
| 特徴 |
|
|---|---|
| セールスコメント | ◇建物面積 2階建て母屋:260.40m2/ガレージ:25.08m2/平屋建て離れ:43.06m2 〈 POINT 〉 ◇四季折々を感じることのできる空間でプライベート空間を最高級演出 木々と調和するお庭&ウッドデッキが開放的な空間に。 ◇「軽井沢」駅より車で8分 都心から新幹線や車でアクセス良好 ◇駐車スペースはガレージ1台、敷地内2台の計3台 ガレージもありますので大切なお車を大切に保管できます◎ ◇LDKは54.1帖 吹抜け天井の広々としたリビングは至福の空間に ◇バスルームは2か所にご用意 お客様と分けることも可能に◎ ■【0120−77−1115】へお気軽にお問い合わせください■ ■【ララハウス 高崎】で検索♪ 最新情報を毎日更新中です! 弊社ホームページをご利用くださいませ |
| 採光面 | - | 構造/階数 | RC造/地上2階建 |
|---|---|---|---|
| 建ぺい率 | 20(%) | 容積率 | 20(%) |
| 駐車場 | - | 現況/引渡し | 空家/相談 |
| 土地権利 | 所有権 | 私道負担面積 | - |
| 接道状況 | 接道: 南西 公道 道路幅: 6m | 用途地域 |
第一種低層住居専用地域
|
| セットバック | - | 法令上の制限 | 日影制限有/日影制限有、軽井沢町都市景観区域ほか |
| 地目 | 宅地 | 地勢 | |
| 建築確認番号 | 都市計画 | ||
| 取引態様 | 売主 | ||
| 情報更新日 | 2026年02月14日 | 次回更新日 | 2026年02月28日 |
| 小学校区 | () |
中学校区 | () |
|---|
| 価格 | 万円 | ||
|---|---|---|---|
| 年利率 | % |
||
| ボーナス払い | 返済年数 | ||
| 頭金 | 直接入力する | 万円 | |

毎月のご返済額 |
ボーナス(×年2回) |
物件価格38,880万円 |
【観光地と避暑地が共存する自然豊かな中軽井沢】人気の星野エリアに近く、自然美と調和する至福のVilla。プライベート空間を最高級演出◎