前橋市大利根町2丁目 新築物件 群馬県前橋市大利根町2丁目|2,580万円の新築一戸建て|ララハウス高崎支店
| 価格 | 2,580万円値下がり ![]() |
||||
|---|---|---|---|---|---|
| 所在地 | 群馬県前橋市大利根町2丁目
この地域周辺の物件を見る |
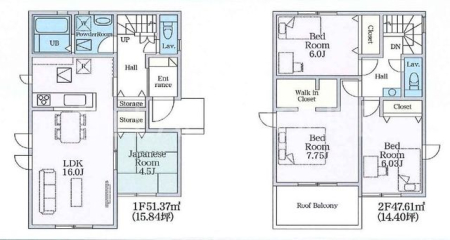
土地面積 | 171.91m² (52坪) | 建物面積 | 99.98m2 |
| 築年月 | 2025年8月築 | 間取り | 4LDK (LDK16/和室4.5/洋室6/洋室6/洋室7.7) | ||
| 交通 |
湘南新宿ライン高海 新前橋 徒歩42分
湘南新宿ライン高海 前橋 徒歩48分 |
||||
| 特徴 |
|
|---|---|
| セールスコメント | \おすすめポイント♪/ ■浴室乾燥機能は、雨の日でも洗濯物を急いで乾かしたい! 花粉が気になるから外に干したくない!というときに大活躍です☆彡 ■ZEH基準もクリアし、家計にも環境にもやさしい住まいです。 ■大利根小まで徒歩2分と、日々のお子様の通学も安心の距離です ■前面道路も広く、車の出し入れもスムーズ。 大通りから1本入った閑静な住宅街で、 落ち着いた暮らしが叶います。 |
| 採光面 | 南 | 構造/階数 | 木造/地上2階建 |
|---|---|---|---|
| 建ぺい率 | 40(%) | 容積率 | 80(%) |
| 駐車場 | 有 | 現況/引渡し | 空家/即時 |
| 土地権利 | 所有権 | 私道負担面積 | - |
| 接道状況 | 接道: 南 公道 道路幅: 6m | 用途地域 |
第一種低層住居専用地域
|
| セットバック | - | 法令上の制限 | - |
| 地目 | 宅地 | 地勢 | |
| 建築確認番号 | 都市計画 | 市街化区域 | |
| 取引態様 | 仲介 | ||
| 情報更新日 | 2026年01月13日 | 次回更新日 | 2026年01月27日 |
| 小学校区 | 前橋市立大利根小学校 (群馬県前橋市) 群馬県前橋市立大利根小学校学区の他の物件を見る |
中学校区 | 箱田中学校 (群馬県前橋市) 群馬県前橋市立箱田中学校学区の他の物件を見る |
|---|
| 価格 | 万円 | ||
|---|---|---|---|
| 年利率 | % |
||
| ボーナス払い | 返済年数 | ||
| 頭金 | 直接入力する | 万円 | |

毎月のご返済額 |
ボーナス(×年2回) |
物件価格2,580万円 |
《前橋市大利根町・新築》大利根小・箱田中エリア☆リビング続きの和室は、お昼寝や遊び場としても活躍し、小さなお子さまがいるご家庭にぴったり☆2Fには6帖以上の居室が3部屋あり、将来の個室利用にも安心です