高崎市石原町 建売 群馬県高崎市石原町 |2,880万円の新築一戸建て|ララハウス高崎支店
| 価格 | 2,880万円 ![]() |
||||
|---|---|---|---|---|---|
| 所在地 | 群馬県高崎市石原町
この地域周辺の物件を見る |
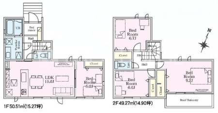
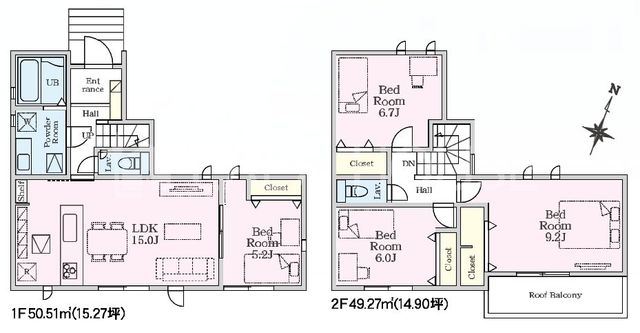
土地面積 | 130.22m² (39.39坪) | 建物面積 | 99.78m2 |
| 築年月 | 2026年6月築 | 間取り | 4LDK (LDK15/洋室5.2/洋室6/洋室6.7/洋室9.2) | ||
| 交通 |
湘南新宿ライン高海 高崎 徒歩35分
上信電鉄 南高崎 徒歩18分 |
||||
| 特徴 |
|
|---|---|
| セールスコメント | \おすすめポイント♪/ ◇帰宅後すぐに手洗い・うがいができ、そのままリビングへ☆ 衛生面にも配慮された、子育て世帯にも嬉しい間取り♪ ◇キッチンから見渡せる5.2帖の洋室 リビングに隣接し、キッチンから様子が見える配置☆ お子さまの遊び場やスタディスペース、 在宅ワーク用のお部屋としても活用できますね♪ ◇ゆとりの9.2帖主寝室 ベッドを置いても余裕のある広さ☆ ◇開放感あふれるルーフバルコニー ガーデニングやチェアを置いて、 くつろぎの時間も楽しめます♪ ◇寺尾小学校徒歩圏内☆ −・−・−・−・−・−・−・−・−・−・−・−・−・−・−・−・− 中古住宅・新築住宅・土地・不動産査定はララハウス高崎支店へ 高崎市・前橋市・藤岡市・富岡市 ■【0120-77-1115】へお気軽にお問い合わせください■ ■【ララハウス 高崎】で検索♪ 最新情報を毎日更新中です! 弊社ホームページをご利用くださいませ☆☆ −・−・−・−・−・−・−・−・−・−・−・−・−・−・−・−・− |
| 採光面 | 南東 | 構造/階数 | 木造/地上2階建 |
|---|---|---|---|
| 建ぺい率 | 40(%) | 容積率 | 80(%) |
| 駐車場 | 有 | 現況/引渡し | -/相談 |
| 土地権利 | 所有権 | 私道負担面積 | - |
| 接道状況 | 接道: 北 公道 道路幅: 6m | 用途地域 |
第一種低層住居専用地域
|
| セットバック | - | 法令上の制限 | 22条区域 |
| 地目 | 宅地 | 地勢 | |
| 建築確認番号 | 第25UDI1W建12413号 | 都市計画 | 市街化区域 |
| 取引態様 | 仲介 | ||
| 情報更新日 | 2026年05月21日 | 次回更新日 | 2026年06月04日 |
| 小学校区 | () |
中学校区 | () |
|---|
| 価格 | 万円 | ||
|---|---|---|---|
| 年利率 | % |
||
| ボーナス払い | 返済年数 | ||
| 頭金 | 直接入力する | 万円 | |

毎月のご返済額 |
ボーナス(×年2回) |
物件価格2,880万円 |
帰宅後すぐに手洗いできる、洗面所経由のリビング動線☆9.2帖の広々主寝室でゆったり休めますね♪日当たりと開放感を楽しめるルーフバルコニー◎寺尾小学校徒歩圏内☆