高崎市箕郷町上芝 新築物件 群馬県高崎市箕郷町上芝 |1,980万円の新築一戸建て|ララハウス高崎支店

0120-77-1155
メール

新築一戸建て

高崎市箕郷町上芝 新築物件NEW

お気に入り
価格 1,980万円 ローンシミュレーション
所在地 群馬県高崎市箕郷町上芝
この地域周辺の物件を見る
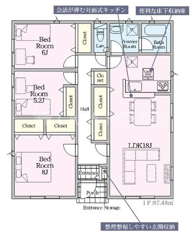
土地面積 201.7m² (61.01坪) 建物面積 87.48m2
築年月 2026年3月築 間取り 3LDK (LDK18/洋室8/洋室6/洋室5.2)
交通
湘南新宿ライン高海 井野 徒歩99分
JR信越本線 群馬八幡 徒歩79分
ここがおすすめ

【高崎市箕郷町上芝・新築物件】箕輪小・箕郷中エリア☆安心の防犯カメラ付き物件!買い物施設が身近に揃う便利な住環境☆多目的に使える贅沢な空間です♪

お問い合わせ、資料請求、見学のお申し込みはこちらから

ララハウス株式会社 高崎支店
0120-77-1115
「ホームページを見た」とお伝え下さい。

お問い合わせ番号をお伝えください
RHS-B02729-001588

内見予約
お問合せ

セールスポイント

特徴
  • フローリング
  • システムキッチン
  • カウンターキッチン
  • シャンプードレッサー
  • 追い焚き
  • シャワートイレ
  • 室内洗濯機置場
  • 浴室乾燥機
  • コンロ三口
  • 床下収納
  • TVドアホン
  • カースペース2台以上
  • 新着物件
セールスコメント

\おすすめポイント♪/
 
◇人気の平屋☆

◇全居室収納完備☆フローリング統一されています♪

◇LDK18帖と広々♪

◇水回りがまとまった間取りで家事動線がスムーズです☆

◇防犯カメラ付きで、毎日の暮らしに安心感をプラス◎

◇スーパー・コンビニが徒歩圏内☆
 夜間や急な買い物にも安心の立地♪


−・−・−・−・−・−・−・−・−・−・−・−・−・−・−・−・−
中古住宅・新築住宅・土地・不動産査定はララハウス高崎支店へ
高崎市・前橋市・藤岡市・富岡市
■【0120-77-1115】へお気軽にお問い合わせください■
■【ララハウス 高崎】で検索♪
  最新情報を毎日更新中です!
  弊社ホームページをご利用くださいませ☆☆
−・−・−・−・−・−・−・−・−・−・−・−・−・−・−・−・−


物件概要

採光面 南東 構造/階数 木造/地上1階建
建ぺい率 70(%) 容積率 200(%)
駐車場 現況/引渡し 空家/相談
土地権利 所有権 私道負担面積 -

接道状況 接道: 南 公道 道路幅: 6m 用途地域
指定なし
セットバック - 法令上の制限 -
地目 宅地 地勢 0
建築確認番号 0 都市計画
取引態様 仲介
情報更新日 2026年04月18日 次回更新日 2026年05月02日
※各種情報と差異がある場合は現況優先となります

学区情報

小学校区
()
中学校区
()
※物件情報の学区情報について
当サイト物件情報に記載されております通学区域(学区)情報は、国土数値情報ダウンロードサービスが提供する小学校区データ【2021年度】及び中学校区データ【2021年度】を元に加工したものですので、記載情報が現在の学区域と異なる場合がございます。
国土数値情報ダウンロードサービスのWEBサイト上で記述通り、データは必ずしも正確とは言えません。また、通学区域(学区)は毎年見直しの対象となりますので、そちらを踏まえ学区情報は参考としてご活用下さい。

お問い合わせ、資料請求、見学のお申し込みはこちらから

ララハウス株式会社 高崎支店
0120-77-1115
「ホームページを見た」とお伝え下さい。

お問い合わせ番号をお伝えください
RHS-B02729-001588

内見予約
お問合せ

この物件でローンシミュレーションする

価格 万円
年利率
ボーナス払い 返済年数
頭金 直接入力する 万円

毎月のご返済額

ボーナス(×年2回)

物件価格

1,980万円
※返済金額はあくまでも目安です。
  • こちらの物件を見たお客様はこんな物件もチェックしています。
  • お気に入り物件

同じ価格帯の物件はこちら

広さの近い物件はこちら

同じ学区の物件はこちら

ララハウス株式会社 高崎支店
0120-77-1115
「ホームページを見た」とお伝え下さい。

お問い合わせ番号をお伝えください
RHS-B02729-001588

内見予約
お問合せ

お問い合わせ

  1. 1
    内容入力
  2. 2
    内容確認
  3. 3
    完了
お問合せ内容必須
【備考欄】
詳細な見学ご希望時間、ご質問、ご希望条件などがございましたらお聞かせ下さい。
(2000文字以内)
お名前必須
メールアドレス必須
※ご記入いただいたメールアドレス宛てに、お問合せ内容の確認メールをお送りいたします。
※Yahoo!メールなどのフリーメールをご利用の場合、迷惑メールフォルダに入る場合があります。
 迷惑メールのフォルダ・設定等をご確認下さい。
電話番号必須
FAX(任意)
※ご入力いただいたお客さまの個人情報は、「個人情報の取扱いについて」に基づき適正に取り扱います。必ずお読みになり、同意の上お問い合わせください。

お気軽にお問い合わせください

0120-77-1115
物件番号 RHS-B02729-001588
※「ホームページを見た」
とお伝え下さい。

お役立ち機能

この物件を
携帯で確認!

page_top

LALA HOUSE GROUP OUR BRAND

  • ララハウス株式会社
  • ル・タン建築設計事務所
  • モダン株式会社
  • ロクシーデザイン
  • HACOワーキングスペース
  • ツリー高崎
  • ララパークSUEHIRO
コーポレートサイトへ