【軽井沢・星野エリア至近】RC造邸宅|土地465坪・LDK43.7帖・2025年全面リフォーム済み 長野県北佐久郡軽井沢町大字長倉 |38,880万円の中古一戸建て|ララハウス高崎支店
| 価格 | 38,880万円 ![]() |
||||
|---|---|---|---|---|---|
| 所在地 | 長野県北佐久郡軽井沢町大字長倉
この地域周辺の物件を見る |
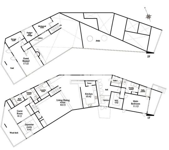
土地面積 | 1538.54m² (465.4坪) | 建物面積 | 260.4m2 |
| 築年月 | 2004年7月築 | 間取り | 4SLDK (LDK54.1/洋室11.1/洋室8.1/和室9.4/S4.8/洋室17.2) | ||
| 交通 |
しなの鉄道 中軽井沢 徒歩20分
|
||||
| 特徴 |
|
|---|---|
| セールスコメント | ◇建物面積 2階建て母屋:260.40m2/ガレージ:25.08m2/平屋建て離れ:43.06m2 東京から新幹線で約70分。 国内屈指の別荘地・軽井沢でも特に格式ある「星野エリア」に近接。 RC造2階建・土地465坪・LDK43.7帖という、 軽井沢でも滅多に出ないスペックの邸宅。 〈 POINT 〉 ◆【立地】星野リゾートまで至近距離 ハルニレテラス・星のや軽井沢・ホテルブレストンコートが 生活圏内にある、軽井沢最高峰のロケーション。 ◆【圧倒的スケール】LDK 43.7帖 + 吹抜け天井 リビングに立った瞬間、その開放感に誰もが言葉を失う。 バスルームは2か所完備。大人数の来客にも対応可能。 ◆【465坪の豊かな緑】ウッドデッキ&庭付き 都心では絶対に得られない、この土地ならではの自然との一体感。 敷地内にガレージ含む3台駐車可能。 ◆【2025年7月リフォーム完了】水回り全面刷新 キッチン・浴室・トイレ・洗面所・内装(壁・床・建具・サッシ)を 全面リフォーム済み。入居後すぐに最高の生活が始まります。 |
| 採光面 | 南 | 構造/階数 | RC造/地上2階建 |
|---|---|---|---|
| 建ぺい率 | 20(%) | 容積率 | 20(%) |
| 駐車場 | 有 | 現況/引渡し | 空家/即時 |
| 土地権利 | 所有権 | 私道負担面積 | - |
| 接道状況 | 接道: 南西 公道 道路幅: 6m | 用途地域 |
第一種低層住居専用地域
|
| セットバック | - | 法令上の制限 | 軽井沢町都市景観区域、日影規制ほか |
| 地目 | 宅地 | 地勢 | 0 |
| 建築確認番号 | 0 | 都市計画 | |
| 取引態様 | 売主 | ||
| 情報更新日 | 2026年04月28日 | 次回更新日 | 2026年05月12日 |
| 小学校区 | () |
中学校区 | () |
|---|
| 価格 | 万円 | ||
|---|---|---|---|
| 年利率 | % |
||
| ボーナス払い | 返済年数 | ||
| 頭金 | 直接入力する | 万円 | |

毎月のご返済額 |
ボーナス(×年2回) |
物件価格38,880万円 |
「軽井沢の中心で、本物の静寂と品格を手に入れる。
星野エリア至近・RC造・465坪の邸宅。東京駅から新幹線で約70分の別天地。」