富岡市七日市 建売 群馬県富岡市七日市 |2,099万円の新築一戸建て|ララハウス高崎支店
| 価格 | 2,099万円 ![]() |
||||
|---|---|---|---|---|---|
| 所在地 | 群馬県富岡市七日市
この地域周辺の物件を見る |
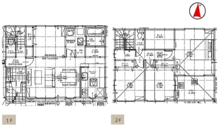
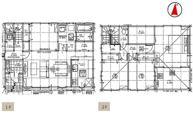
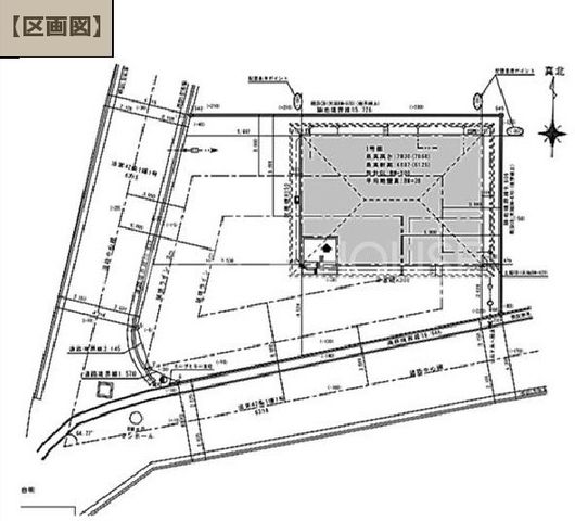
土地面積 | 199.63m² (60.38坪) | 建物面積 | 113.44m2 |
| 築年月 | 2025年7月築 | 間取り | 3LDK (-) | ||
| 交通 |
上信電鉄 西富岡 徒歩5分
上信電鉄 上州富岡 徒歩10分 |
||||
| 特徴 |
|
|---|---|
| セールスコメント | \おすすめポイント♪/ ◇「西富岡」駅まで徒歩5分! 駅が近いので、毎日の通勤や通学も負担が少なく 移動がスムーズですね♪ ◇南西角地に位置しているため日当たりが良く、 開放感のある明るい住まいです☆ ◇キッチン横にはパントリーがあり、 食品のストックや調理家電もすっきり収納できます♪ ◇洗面所にはリネンスペースを設けているので、 タオルや日用品の収納場所にも困りませんね☆ ◇2階主寝室にはWIC◎ 衣類や季節物もまとめて収納でき、 お部屋を広く使えますね☆ −・−・−・−・−・−・−・−・−・−・−・−・−・−・−・−・− 中古住宅・新築住宅・土地・不動産査定はララハウス高崎支店へ 高崎市・前橋市・藤岡市・富岡市 ■【0120-77-1115】へお気軽にお問い合わせください■ ■【ララハウス 高崎】で検索♪ 最新情報を毎日更新中です! 弊社ホームページをご利用くださいませ☆☆ −・−・−・−・−・−・−・−・−・−・−・−・−・−・−・−・− |
| 採光面 | 南 | 構造/階数 | 木造/地上2階建 |
|---|---|---|---|
| 建ぺい率 | 60(%) | 容積率 | 200(%) |
| 駐車場 | 有 | 現況/引渡し | 空家/即時 |
| 土地権利 | 所有権 | 私道負担面積 | - |
| 接道状況 | 接道: 南 公道 道路幅: 4m 接道: 西 公道 道路幅: 4.2m |
用途地域 |
第一種中高層住居専用地域
|
| セットバック | - | 法令上の制限 | - |
| 地目 | 宅地 | 地勢 | |
| 建築確認番号 | 都市計画 | ||
| 取引態様 | 仲介 | ||
| 情報更新日 | 2026年05月23日 | 次回更新日 | 2026年06月06日 |
| 小学校区 | 富岡市立西小学校 (群馬県富岡市) 群馬県富岡市立西小学校学区の他の物件を見る |
中学校区 | 富岡中学校 (群馬県富岡市) 群馬県富岡市立富岡中学校学区の他の物件を見る |
|---|
| 価格 | 万円 | ||
|---|---|---|---|
| 年利率 | % |
||
| ボーナス払い | 返済年数 | ||
| 頭金 | 直接入力する | 万円 | |

毎月のご返済額 |
ボーナス(×年2回) |
物件価格2,099万円 |
角地ならではの開放感と日当たりの良さが魅力の住まい♪「西富岡」駅まで徒歩5分で、毎日の通勤・通学にも便利な立地☆食品や日用品の収納に便利なパントリー付き◎